Имоти
Имоти

Тристаен апартамент в кв. Христо Смирненски

Пловдив, Смирненски

Общ преглед

  • 3-стаен
  • Тип имот
  • 2
  • Спални
  • 1
  • Баня
  • 110
  • 2025
  • Година на строеж

Описание

БИЛДИНГ БОКС има удоволствието да Ви представи най-новото бижу в градската архитектура на Пловдив.


Сградата впечатлява със своя елегантен дизайн, модерна визия и висок стандарт на изпълнение, като предлага перфектната комбинация от комуникативност, комфорт и стил.


Предимства на имота:

- ЛОКАЦИЯ: Разположена е на бул. Пещерско шосе, в непосредствена близост до улица, водеща към Гребната база – едно от най-предпочитаните места за живот и отдих в града под тепетата. Изключително комуникативна точка – само на 30 метра от спирка на градския транспорт, осигуряваща лесен достъп до всяка част на града.

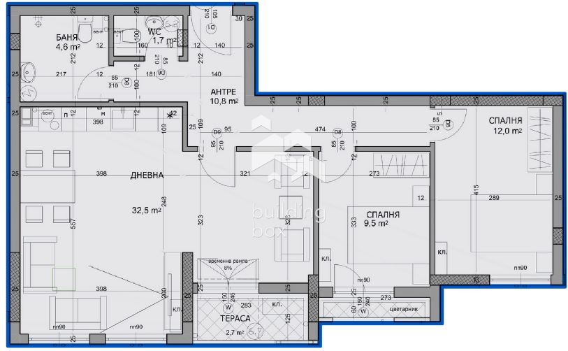
- РАЗПРЕДЕЛЕНИЕ: Състои се от просторна дневна с кухненски бокс и трапезария, две спални, баня с тоалетна и тераса.

Функционалното разпределение и големите прозорци осигуряват максимален комфорт, светлина и уют.

- ПЛОЩ: Обща площ – 110,19 кв.м., от които чиста жилищна площ – 106,96 кв.м. и изба – 3,23 кв.м.

- ЕТАЖ: 2-ри етаж от шестетажна сграда.

- ИЗЛОЖЕНИЕ: ЮГ – осигурява естествена светлина през целия ден и усещане за простор.



Предимства на сградата:

- СГРАДА: Шестетажна, с два вътрешни входа и разнообразни жилища – едностайни, двустайни, тристайни и четиристайни апартаменти, отговарящи на нуждите и стила на всеки собственик.

  1. На партерно ниво са разположени търговски помещения и магазини, осигуряващи удобен достъп до важни ежедневни услуги.
  2. Подземното ниво включва гаражи и мазета, свързани с жилищата чрез асансьор с топла връзка – гаранция за удобство и сигурност.
  3. Предвидени са и достатъчно паркоместа, които удовлетворяват нуждите на всички живущи.

- СТРОИТЕЛСТВО И КАЧЕСТВО: Сградата е изградена по най-съвременни стандарти и с висококачествени материали:

  1. Зидария: тухли Wienerberger – доказано качество и дълготрайност.
  2. Фасада: декоративни окачени елементи от еталбонд и полиуретан, перфориран еталбонд и топлоизолация по стандартите на BAUMIT.
  3. Дограма: висок клас PVC дограма с четирисезонен стъклопакет – отлична топло- и шумоизолация.
  4. Входни врати: блиндирани за сигурност и спокойствие.
  5. Интериорни врати: МДФ, осигуряващи изискан завършек.
  6. Общи части: завършени с гранит и мраморлуксозни фоайета с дизайнерски елементи, които придават усещане за престиж още с влизането в сградата.
  7. Асансьор: хидравличен, с капацитет до шест души и автоматични врати – за безшумна и комфортна работа.
  8. ПАНОРАМНИ ГЛЕДКИ: Много от жилищата предлагат впечатляваща гледка към Родопите, съчетавайки градската динамика с усещане за природа и простор.


БИЛДИНГ БОКС предоставя безплатна консултация и съдействие при финансиране на избрания от Вас имот.


Оферта № 26554

Имаш интерес?

Свържи се
с нас

Имаш интерес?

Свържи се
с нас

Допълнителни детайли

  • Номер на имота: 26554
  • Цена: € 198,342
    (387,923.23 лв.)
  • Спални: 2
  • Баня: 1
  • Площ: 110
  • Статус на имота: Купи

Размер на кредит

| €

2,500 €

500,000 €

Срок на кредит

| месеца

36 месеца

360 месеца

Лихвен процент

| %

2.45%

5%

Месечна вноска

ГПР %

Общо дължима сума

Действия по вписване на ипотека (Еднократно)

€20.45

Такса за проверка и анализ на обезпечението по кредита (Еднократно)

€204.52

Такса план (Месечно)

€6.13

Такса за оценка на обезпечение (Еднократно)

€120.15

Powered by Credia

Стойност на имота

€198342 / 387924 лв.

Ценови диапазон за наем на 3-стаен в Смирненски, Пловдив

€550 - €650

Процент на възвръщаемост:

3.93%

*Цените са ориентировачни. За повече информация се свържете с наш консултант.

Powered by Credia

Обадете се 0877190777
ПОДОБНИ ИМОТИ

ПОДОБНИ
ИМОТИ

Сравняване на списъци

Сравни
Златина Тачкова
  • Златина Тачкова

Внимание

Академиите в София, Пловдив и Варна се провеждат 3 пъти в годината – в началото на всяка година, на пролет и на есен.

Очаквайте да се свържем с вас, за да се запишете за следващият свободен прозорец.

This site is registered on wpml.org as a development site. Switch to a production site key to remove this banner.