Имоти
Имоти

Тристаен апартамент в кв. Остромила

Пловдив, Остромила

Общ преглед

  • 3-стаен
  • Тип имот
  • 2
  • Спални
  • 94
  • 2026
  • Година на строеж

Описание

БИЛДИНГ БОКС предлага за продажба тристаен апартамент в нова сграда в кв. Остромила.


Предимства на имота:

- ЛОКАЦИЯ: В самото начало на кв. Остромила, в близост до VIA Парк Юг.

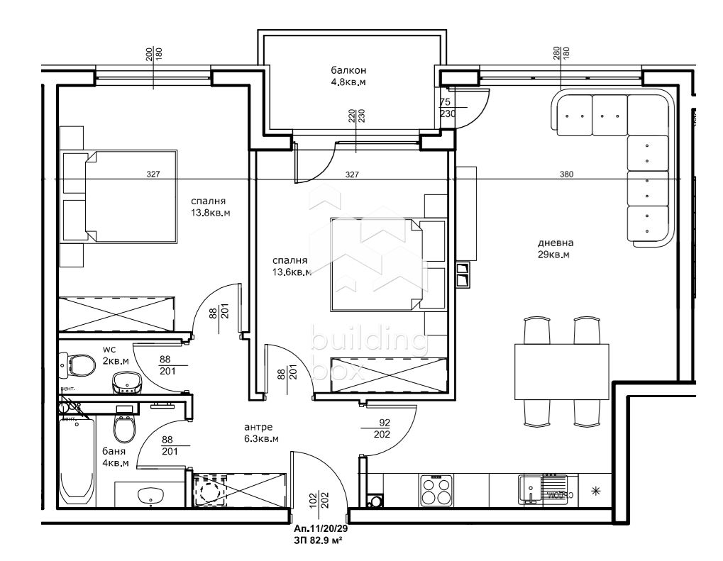
- РАЗПРЕДЕЛЕНИЕ: Просторна всекидневна с кухненски бокс, две спални, антре, две санитарни помещения и тераса.

- ЕТАЖНОСТ: 3-ти етаж от общо 4.

- ОТОПЛЕНИЕ: Електричество.

- ИЗЛОЖЕНИЕ: ЗАПАД.

- ПАРКИРАНЕ: Възможност за закупуване на паркомясто от инвеститора.

- СГРАДА: Апартаментът се намира в нова сграда от инвеститор с дългогодишна история и опит.

- ЕТАП НА СТРОИТЕЛСТВО: АКТ 14. Въвеждане в експлоатация (АКТ 16) се очаква през 2027г.

- СХЕМА НА ПЛАЩАНЕ: 20% сега – останалата част от сумата при АКТ 16. 


БИЛДИНГ БОКС предоставя безплатна консултация и съдействие при финансиране на избрания от Вас имот.


Оферта №13886

Имаш интерес?

Свържи се
с нас

Имаш интерес?

Свържи се
с нас

Допълнителни детайли

  • Номер на имота: 13886
  • Цена: € 137,749
    (269,413.63 лв.)
  • Спални: 2
  • Площ: 94
  • Статус на имота: Купи

Размер на кредит

| €

2,500 €

500,000 €

Срок на кредит

| месеца

36 месеца

360 месеца

Лихвен процент

| %

2.45%

5%

Месечна вноска

ГПР %

Общо дължима сума

Действия по вписване на ипотека (Еднократно)

€20.45

Такса за проверка и анализ на обезпечението по кредита (Еднократно)

€204.52

Такса план (Месечно)

€6.13

Такса за оценка на обезпечение (Еднократно)

€120.15

Powered by Credia

Стойност на имота

€137749 / 269414 лв.

Ценови диапазон за наем на 3-стаен в Остромила, Пловдив

€530 - €630

Процент на възвръщаемост:

5.49%

*Цените са ориентировачни. За повече информация се свържете с наш консултант.

Powered by Credia

Обадете се 0877190777
ПОДОБНИ ИМОТИ

ПОДОБНИ
ИМОТИ

Сравняване на списъци

Сравни
Екатерина Кирилова
  • Екатерина Кирилова

Внимание

Академиите в София, Пловдив и Варна се провеждат 3 пъти в годината – в началото на всяка година, на пролет и на есен.

Очаквайте да се свържем с вас, за да се запишете за следващият свободен прозорец.

This site is registered on wpml.org as a development site. Switch to a production site key to remove this banner.