Имоти
Имоти

Тристаен апартамент в нов и луксозен комплекс – кв. Гагарин.

Пловдив, Гагарин

Общ преглед

  • 3-стаен
  • Тип имот
  • 2
  • Спални
  • 116
  • 2027
  • Година на строеж

Описание

БИЛДИНГ БОКС предлага за продажба тристаен апартамент в напреднал етап на строителство в кв. Гагарин.


Предимства на имота:

- ЛОКАЦИЯ: Комплексът е разположен в квартал Гагарин, в близост до основни пътни артерии, детски градини, училища и паркове, както и на 10 минути пешеходно разстояние от центъра на гр. Пловдив.

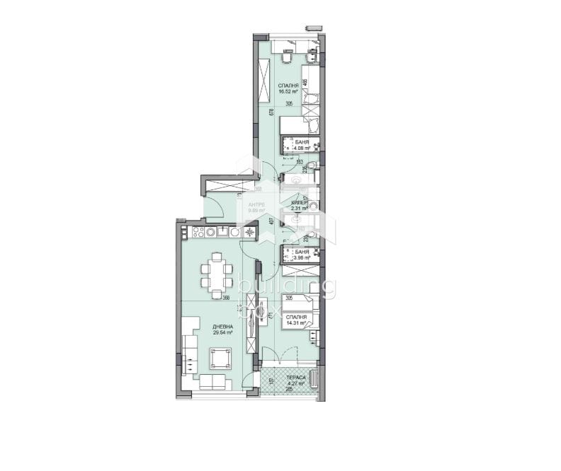
- РАЗПРЕДЕЛЕНИЕ: Просторна всекидневна с кухненски бокс, с площ от 30 кв.м., две просторни спални, антре, две бани с тоалетни, килер и тераса.

- ПЛОЩ: Апартаментът е с обща площ от 115,87 кв.м.

- ОТОПЛЕНИЕ: Електричество.

- ИЗЛОЖЕНИЕ: СЕВЕР/ЮГ.

- ЕТАЖ: 3-ти етаж от общо 13.

- ПАРКИРАНЕ: Наличен подземен и надземен паркинг с възможност за закупуване на паркоместа и гаражи.

- СГРАДА: Модерна сграда, проектирана от инвеститор с опит и история в гр. Пловдив.

- ЕТАП НА СТРОИТЕЛСТВО: Строителството е стартирало през м. Юни 2024г. Въвеждане в експлоатация се очаква в началото на 2027г.


БИЛДИНГ БОКС предоставя безплатна консултация и съдействие при финансиране на избрания от Вас имот.

Оферта № 20103

Имаш интерес?

Свържи се
с нас

Имаш интерес?

Свържи се
с нас

Допълнителни детайли

  • Номер на имота: 20103
  • Цена: € 153,900
    (301,002.24 лв.)
  • Спални: 2
  • Площ: 116
  • Статус на имота: Купи

Размер на кредит

| €

2,500 €

500,000 €

Срок на кредит

| месеца

36 месеца

360 месеца

Лихвен процент

| %

2.45%

5%

Месечна вноска

ГПР %

Общо дължима сума

Действия по вписване на ипотека (Еднократно)

€20.45

Такса за проверка и анализ на обезпечението по кредита (Еднократно)

€204.52

Такса план (Месечно)

€6.13

Такса за оценка на обезпечение (Еднократно)

€120.15

Powered by Credia

Стойност на имота

€153900 / 301003 лв.

Ценови диапазон за наем на 3-стаен в Гагарин, Пловдив

€360 - €430

Процент на възвръщаемост:

3.35%

*Цените са ориентировачни. За повече информация се свържете с наш консултант.

Powered by Credia

Обадете се 0879900984
ПОДОБНИ ИМОТИ

ПОДОБНИ
ИМОТИ

Сравняване на списъци

Сравни
Апостол Лентов
  • Апостол Лентов

Внимание

Академиите в София, Пловдив и Варна се провеждат 3 пъти в годината – в началото на всяка година, на пролет и на есен.

Очаквайте да се свържем с вас, за да се запишете за следващият свободен прозорец.

This site is registered on wpml.org as a development site. Switch to a production site key to remove this banner.