Имоти
Имоти

Тристаен апартамент в нова модерна сграда – Централна София

София, Център

Общ преглед

  • 3-стаен
  • Тип имот
  • 2
  • Спални
  • 111
  • 2026
  • Година на строеж

Описание

БИЛДИНГ БОКС предлага за продажба тристаен апартамент в нова модерна сграда в Централна София



✔ Локация: бул. Сливница, ул. Братя Миладинови, бул. Христо Ботев – в сърцето на града, в близост до Лъвов мост, Централна гара, Женския пазар, парк „Св. Никола“, училища, детски градини, магазини и II МБАЛ.

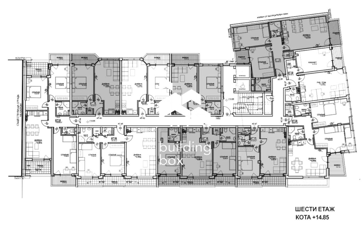
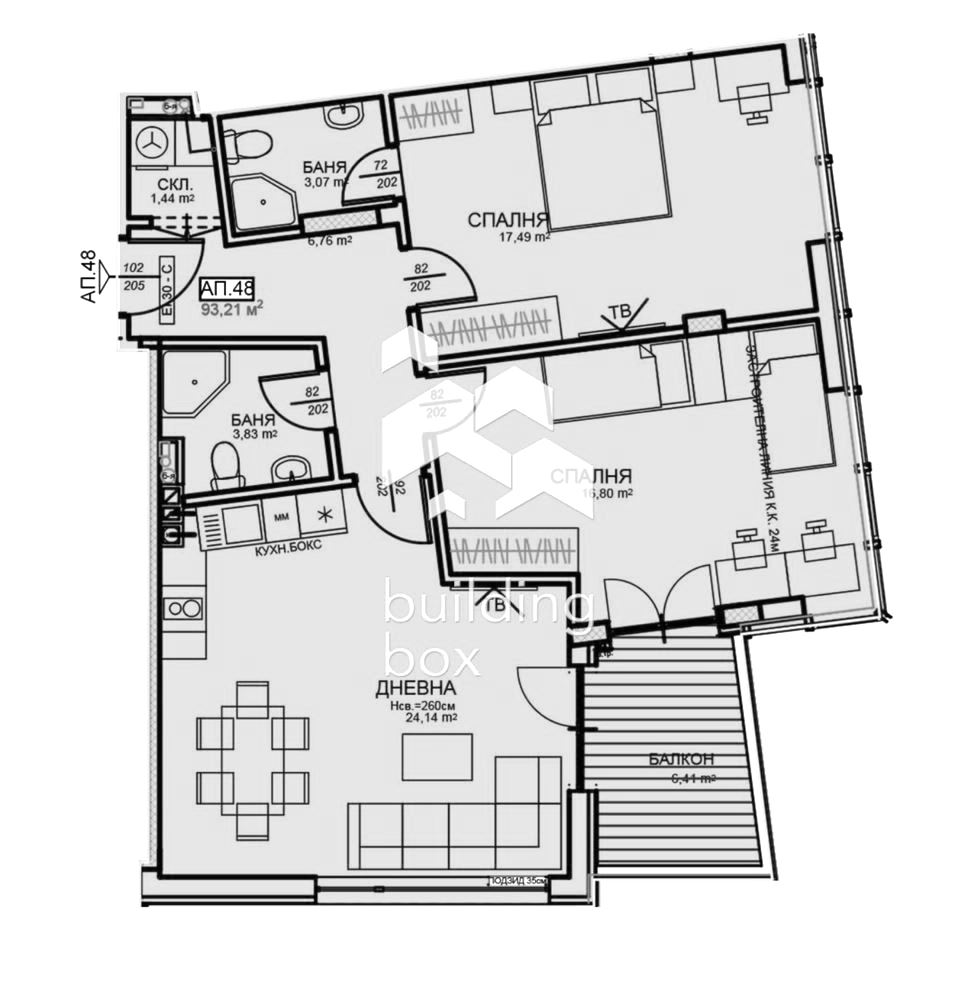
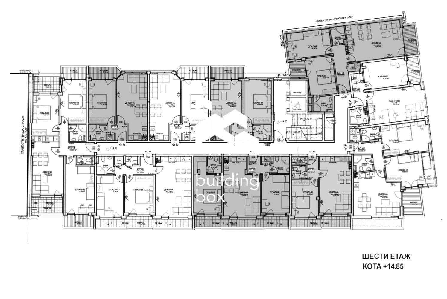
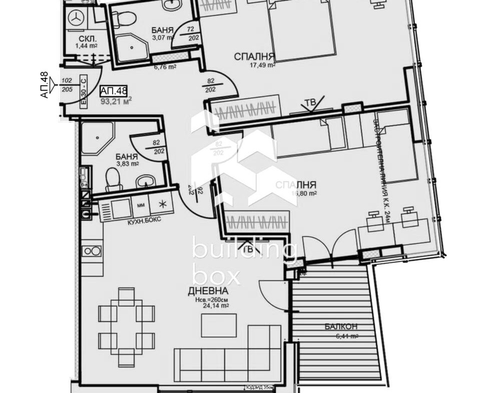
✔ Апартамент 48

  • Обща площ: 110.92 кв.м.
  • Нетна площ: 93.21 кв.м.
  • Общи части: 17.71кв.м.
  • Изложение: изток-североизток
  • Възможност за покупка на подземно или надземно паркомясто на цена между 26 000 - 52 000 евро

Предимства на имота:

  • Ново строителство от доказан строител
  • Избор от апартаменти с 1, 2 или 3 спални
  • Луксозни общи части – облицовка от естествен камък
  • Модерна архитектура, съобразена с нуждите на активния градски човек
  • Отопление от ТЕЦ
  • 6-камерна немска PVC дограма с троен стъклопакет
  • Външна блиндирана врата
  • Апартаментите се издават по БДС: шпакловка и замазка

Строителни характеристики:

  • Конструкция: монолитна стоманобетонна, безгредова, с колони и шайби
  • Фундиране: фундаментна плоча
  • Етажност: 8 етажа
  • Брой апартаменти: 61
  • Материали: енергоефективни тухли и топлоизолация по всички ограждащи елементи

Инсталации:

  • Отопление и вентилация: ТЕЦ, радиатори; вентилация за санитарни възли и подземни гаражи
  • Електроинсталации: силова, слаботокова, мълниезащита, пожароизвестяване
  • ВиК: централно топла вода, вътрешно и външно отводняване на тераси и покриви

Срокове за строителство:

  • Старт: 30.09.2023
  • Акт 14: март 2025
  • Очакван Акт 15: декември 2025
  • Очакван Акт 16 (разрешение за ползване): септември 2026

Защо да изберете този имот?

✅ Централна локация с отлични комуникации

✅ Модерна визия и функционално разпределение

✅ Високо качество на изпълнение

✅ Лесен достъп до метро и градски транспорт


БИЛДИНГ БОКС предоставя безплатна консултация и съдействие при финансиране на избрания от Вас имот.


Оферта № 22524

Имаш интерес?

Свържи се
с нас

Имаш интерес?

Свържи се
с нас

Допълнителни детайли

  • Номер на имота: 22524
  • Цена: € 273,972
    (535,842.66 лв.)
  • Спални: 2
  • Площ: 111
  • Статус на имота: Купи

Размер на кредит

| €

2,500 €

500,000 €

Срок на кредит

| месеца

36 месеца

360 месеца

Лихвен процент

| %

2.45%

5%

Месечна вноска

ГПР %

Общо дължима сума

Действия по вписване на ипотека (Еднократно)

€20.45

Такса за проверка и анализ на обезпечението по кредита (Еднократно)

€204.52

Такса план (Месечно)

€6.13

Такса за оценка на обезпечение (Еднократно)

€120.15

Powered by Credia

Стойност на имота

€273972 / 535843 лв.

Ценови диапазон за наем на 3-стаен в Център, София

€850 - €1050

Процент на възвръщаемост:

4.6%

*Цените са ориентировачни. За повече информация се свържете с наш консултант.

Powered by Credia

Обадете се 0877734412
ПОДОБНИ ИМОТИ

ПОДОБНИ
ИМОТИ

Сравняване на списъци

Сравни
Любен Дойчев
  • Любен Дойчев

Внимание

Академиите в София, Пловдив и Варна се провеждат 3 пъти в годината – в началото на всяка година, на пролет и на есен.

Очаквайте да се свържем с вас, за да се запишете за следващият свободен прозорец.

This site is registered on wpml.org as a development site. Switch to a production site key to remove this banner.