Имоти
Имоти

Тристаен апартамент в новострояща се сграда

Варна, Аспарухово

Общ преглед

  • 3-стаен
  • Тип имот
  • 2
  • Спални
  • 99
  • 2027
  • Година на строеж

Описание

БИЛДИНГ БОКС предлага за продажба тристаен апартамент в новострояща се сграда


-ЛОКАЦИЯ: Разположена в кв. Аспарухово, жилищната сграда предоставя уникално съчетание между чист свеж горски въздух и спокойствие.

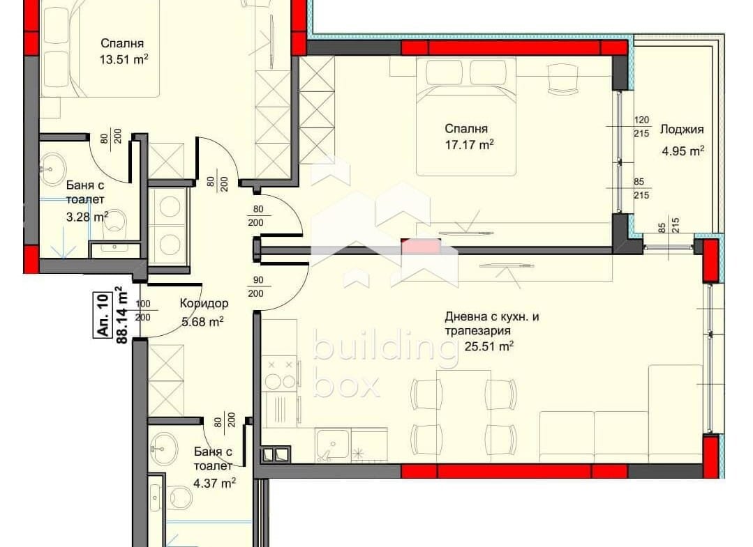
-РАЗПРЕДЕЛЕНИЕ: Апартаментът се състои от 2 спални по 17.17 и 13.51 кв.м., всекидневна с кухненски бокс - 25.51 кв.м., 2 бани с тоалетна, килер, коридор, лоджия - 4.95 кв.м.

-ЕТАЖНОСТ: Етаж 2 от общо 6

-ОТОПЛЕНИЕ: Електричество

-ИЗЛОЖЕНИЕ: Североизток

-ПАРКИРАНЕ: Налични паркоместа

-СГРАДА: Сградата е проектирана е със съвременен дизайн и се състои от 6 жилищни етажа и едно подземно ниво.

ЕТАП НА СТРОИТЕЛСТВО: Сградата е с Разрешение за строеж

ИНВЕСТИТОР: Инвеститор с доказана история от вече завършени сгради, които могат да бъдат разгледани като начин на изпълнение, качество, външен вид и стил.


Билдинг Бокс предоставя безплатна консултация и съдействие при финансиране на избрания от Вас имот.

Оферта №17284

Имаш интерес?

Свържи се
с нас

Имаш интерес?

Свържи се
с нас

Допълнителни детайли

  • Номер на имота: 17284
  • Цена: € 135,340
    (264,702.03 лв.)
  • Спални: 2
  • Площ: 99
  • Статус на имота: Купи

Размер на кредит

| €

2,500 €

500,000 €

Срок на кредит

| месеца

36 месеца

360 месеца

Лихвен процент

| %

2.45%

5%

Месечна вноска

ГПР %

Общо дължима сума

Действия по вписване на ипотека (Еднократно)

€20.45

Такса за проверка и анализ на обезпечението по кредита (Еднократно)

€204.52

Такса план (Месечно)

€6.13

Такса за оценка на обезпечение (Еднократно)

€120.15

Powered by Credia

Стойност на имота

€135340 / 264703 лв.

Ценови диапазон за наем на 3-стаен в Аспарухово, Варна

€350 - €460

Процент на възвръщаемост:

4.08%

*Цените са ориентировачни. За повече информация се свържете с наш консултант.

Powered by Credia

Обадете се 0879900993
ПОДОБНИ ИМОТИ

ПОДОБНИ
ИМОТИ

Сравняване на списъци

Сравни
Силвия Георгиева
  • Силвия Георгиева

Внимание

Академиите в София, Пловдив и Варна се провеждат 3 пъти в годината – в началото на всяка година, на пролет и на есен.

Очаквайте да се свържем с вас, за да се запишете за следващият свободен прозорец.

This site is registered on wpml.org as a development site. Switch to a production site key to remove this banner.