Предлагаме просторен тристаен апартамент в нова сграда, в ж.к. Красна Поляна – идеален за вашия нов дом или инвестиция!
БИЛДИНГ БОКС предлага за продажба просторен тристаен апартамент в модерна новострояща се сграда в ж.к. Красна Поляна.(А05)
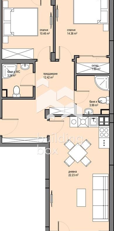
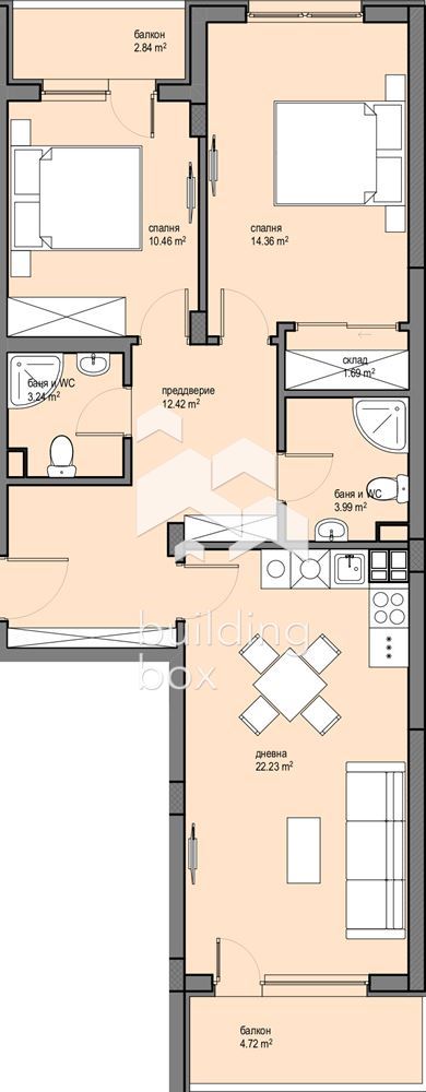
Жилището ще се намира на втори етаж от общо осем с чиста площ от 90,59 кв.м. и обща площ от 103,20кв.м.
Имотът се състои от антре, коридор, дневна с кухненски бокс, две спални, склад, баня с тоалетна, тоалетна и балкон.
Отоплението е предвидено чрез ТЕЦ/климатици.
Изложението е югозапад.
Възможност за закупуване на ПАРКОМЯСТО.
ПРЕДИМСТВА НА ПРОЕКТА:
• Перфектно усвоени площи;
• Правилни форми на апартаментите;
• Добри схеми на плащане;
• Висококачествени строителни материали;
• Жилища, подходящи, както за лично ползване, така и за инвестиция;
• Комуникативен район с напълно изградена инфраструктура;
• Паркоместа, ситуирани в гаражи;
Местоположение: Разположена на бул. „Никола Мушанов в близост до Ритейл парк и удобни транспортни връзки .
На пешеходно разстояние ще откриете:
- Детски градини и училище;
- Супермаркети: БИЛЛА, Фантастико и ЛИДЛ;
-МБАЛ Надежда
-Метростанция Овча Купел на 400м
-Практикер
-Техномаркет
Инвеститорът има над 20 завършени проекта, както и такива в процес на строителство.
В момента сградата е на етап акт 14.
Акт 16 се очаква през Юни 2026г.
ИМОТЪТ Е ПОДХОДЯЩ, КАКТО ЗА ЛИЧНО ПОЛЗВАНЕ, ТАКА И ЗА ИНВЕСТИЦИЯ.
БИЛДИНГ БОКС предоставя безплатна консултация и съдействие при финансиране на избрания от Вас имот.
Оферта № 22057
| €
2,500 €
500,000 €
| месеца
36 месеца
360 месеца
| %
2.45%
5%
Месечна вноска
ГПР %
Общо дължима сума
Действия по вписване на ипотека (Еднократно)
€20.45
Такса за проверка и анализ на обезпечението по кредита (Еднократно)
€204.52
Такса план (Месечно)
€6.13
Такса за оценка на обезпечение (Еднократно)
€120.15
Powered by Credia
Подходящ се за предварително одобрение!
Lorem ipsum dolor sit amet, consectetur adipiscing elit. Maecenas imperdiet leo nisl, et porta massa tempus eget. Sed vestibulum sagittis ante eu dictum.
Няма данни за наемите в района.
Powered by Credia
Подходящ се за предварително одобрение!
Lorem ipsum dolor sit amet, consectetur adipiscing elit. Maecenas imperdiet leo nisl, et porta massa tempus eget. Sed vestibulum sagittis ante eu dictum.
Сравняване на списъци
СравниМоля, въведете вашето потребителско име или имейл адрес. Ще получите връзка за създаване на нова парола по имейл.
Академиите в София, Пловдив и Варна се провеждат 3 пъти в годината – в началото на всяка година, на пролет и на есен.
Очаквайте да се свържем с вас, за да се запишете за следващият свободен прозорец.