Сградата предлага уют, спокойствие и морска гледка от първия етаж!
БИЛДИНГ БОКС предлага тристаен апартамент в жилищна сграда с модерна архитектура.
– ЛОКАЦИЯ: Бутиковата жилищна сграда се намира във високата и тиха част на квартал Бриз. Локация с бърз достъп до главен булевард, спокойствие и зеленина в квартал с модерни нови сгради.
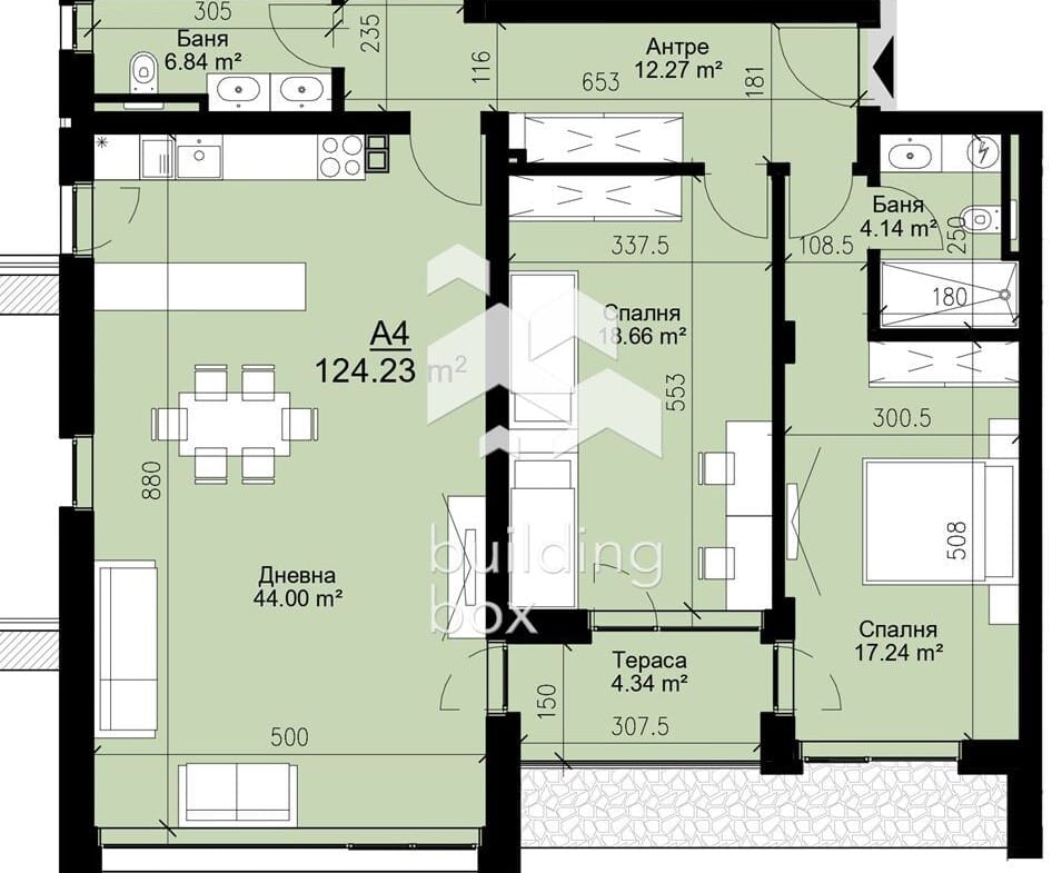
– РАЗПРЕДЕЛЕНИЕ: Входно антре, всекидневна с кухненски кът, две спални, две санитарни помещения, тераса и избено помещение.
– ЕТАЖНОСТ: Етаж 2 от 5
– ИЗЛОЖЕНИЕ: Юг-Югозапад
– ОТОПЛЕНИЕ: Електричество
– ЕТАП НА СТРОИТЕЛСТВО: Сградата е с Акт 14 от 09.05.2025г.
– ПАРКИРАНЕ: Налични са подземни и надземни паркоместа.
– СГРАДА: Качествено строителство, апартаментите разполагат с функционални разпределения с всекидневни и спални с голяма площ, френски прозорци и стъклени парапети за максимална светлина и простор.
От инвеститор с доказана история от вече завършени сгради, които могат да бъдат разгледани като начин на изпълнение, качество и външен вид.
Билдинг Бокс предоставя безплатна консултация и съдействие при финансиране на избрания от Вас имот.
Оферта № 16786
| €
2,500 €
500,000 €
| месеца
36 месеца
360 месеца
| %
2.45%
5%
Месечна вноска
ГПР %
Общо дължима сума
Действия по вписване на ипотека (Еднократно)
€20.45
Такса за проверка и анализ на обезпечението по кредита (Еднократно)
€204.52
Такса план (Месечно)
€6.13
Такса за оценка на обезпечение (Еднократно)
€120.15
Powered by Credia
Подходящ се за предварително одобрение!
Lorem ipsum dolor sit amet, consectetur adipiscing elit. Maecenas imperdiet leo nisl, et porta massa tempus eget. Sed vestibulum sagittis ante eu dictum.
Ценови диапазон за наем на 3-стаен в Бриз, Варна
€600 - €700
Процент на възвръщаемост:
2.9%
*Цените са ориентировачни. За повече информация се свържете с наш консултант.
Powered by Credia
Подходящ се за предварително одобрение!
Lorem ipsum dolor sit amet, consectetur adipiscing elit. Maecenas imperdiet leo nisl, et porta massa tempus eget. Sed vestibulum sagittis ante eu dictum.
Сравняване на списъци
СравниМоля, въведете вашето потребителско име или имейл адрес. Ще получите връзка за създаване на нова парола по имейл.
Академиите в София, Пловдив и Варна се провеждат 3 пъти в годината – в началото на всяка година, на пролет и на есен.
Очаквайте да се свържем с вас, за да се запишете за следващият свободен прозорец.