Имоти
Имоти

Тристаен апартамент в затворен комплекс в парк с морска панорама

Варна, м-т Св. Никола

Общ преглед

  • 3-стаен
  • Тип имот
  • 2
  • Спални
  • 186
  • 2025
  • Година на строеж

Описание



БИЛДИНГ БОКС продава тристаен апартамент в затворен комплекс в парк с морска панорама.

Предимства на имота:

– Гъвкави схеми на плащане

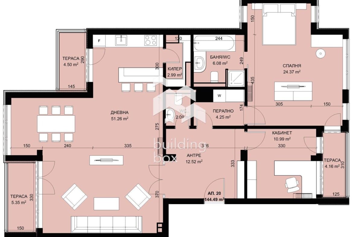
– РАЗПРЕДЕЛЕНИЕ: Апартаментът се състои от - всекидневна с кухненски бокс с площ от 51.26 кв.м. с излаз на две тераси - 5.35 кв.м. и 4.50 кв.м., спалня - 24.37 кв.м. със собствена баня с тоалетна - 6.08 кв.м. и излаз на тераса - 4.16кв.м., спалня - 10.99 кв.м. с излаз на тераса - 4.16 кв.м., перално помещение - 4.25 кв.м., тоалетна - 2.09 кв.м., килер - 2.99 кв.м. Общата площ е 185.69 кв.м., а застроената –144.49 кв.м.

– ЕТАЖ: Етаж 2 от общо 4.

– ИЗЛОЖЕНИЕ: Юг/Изток/Запад.

– ОТОПЛЕНИЕ: Газ, електричество. Газификация на всеки вход по вертикал и хоризонтал до мястото на газовия котел и котлони на кухня. Отръбяване за водно парно за всеки апартамент.

– ЗАВЪРШЕНОСТ: Вароциментови мазилки по стени и тавани, гипсокартон и замазки по подове. Комплексът е с Акт 15. Удостоверение за въвеждане в експлоатация се очаква май 2025 г.

– ОБЩИ ЧАСТИ: Коридорите и стълбищните клетки на всеки вход са с настилки от естествен камък и осветени с дизайнерско ниско-енергийно LED осветление.Външните паркоместа са с асфалтова настилка – номерирани и разграфени.

– ЛОКАЦИЯ: м-т Свети Никола

– СИГУРНОСТ: Достъпът до комплекса е ограничен с бариера – с постоянно видеонаблюдение на вътрешните части и периферията на комплекса.

– ПАРКИРАНЕ: Възможност за закупуване на паркомясто или гараж.

Гаражите, вътрешните и подземните паркоместа са изпълнени от шлайфан бетон и/или полимерна настилка, осигуряващи лесна поддръжка при замърсявания от петролни продукти – номерирани и разграфени.

– КОМПЛЕКС: Сградите разполагат с контрол на достъп, видеонаблюдение на вътрешно и външно пространство на всеки вход и видеодомофонна звънчева система.

Кръгови кръстовища и локално, опосредстващи бърза и безопасна връзка с транспортната схема на гр. Варна при дигитален достъп до комплекса чрез разпознаване на регистрационен номер, телефон, чип и/или дистанционно, съобразен с всеки ползвател.

– ПАРК: Ландшафтна архитектура, съчетаваща над 7000 бр. различни по големина и структура дървесна, храстова, тревиста, цъфтяща, вечнозелена и увивна растителност. Дизайнерско алейно, градинско и обектово LED осветление, създаващо комфорт и нощна приказна феерия от светлина в парка.

Собствени сондажи за управление на възобновяеми източници при инженерно оптимизиран разход и постоянен нисък общ разход за поддръжка на парка.

Сградите са оборудвани с периферно видеонаблюдение, съобразено с цялостно решение за дигитален достъп в комплекса.


Изобилието от зеленина хармонира с парковите съоръжения, сред които са:

  • 2 детски площадки 3-12 г.
  • 2 площадки 10+
  • лаундж зона
  • външен фитнес
  • зона за разхождане на домашни любимци
  • просторни алеи и зелени площи.


Простор & Панорама.

Синергия & Симбиоза.


Билдинг Бокс предоставя безплатна консултация и съдействие при финансиране на избрания от Вас имот.

Оферта № 9894

Имаш интерес?

Свържи се
с нас

Имаш интерес?

Свържи се
с нас

Допълнителни детайли

  • Номер на имота: 9894
  • Цена: € 338,000
    (661,070.54 лв.)
  • Спални: 2
  • Площ: 186
  • Статус на имота: Купи

Размер на кредит

| €

2,500 €

500,000 €

Срок на кредит

| месеца

36 месеца

360 месеца

Лихвен процент

| %

2.45%

5%

Месечна вноска

ГПР %

Общо дължима сума

Действия по вписване на ипотека (Еднократно)

€20.45

Такса за проверка и анализ на обезпечението по кредита (Еднократно)

€204.52

Такса план (Месечно)

€6.13

Такса за оценка на обезпечение (Еднократно)

€120.15

Powered by Credia

Стойност на имота

€338000 / 661071 лв.

Ценови диапазон за наем на 3-стаен в м-т Св. Никола, Варна

€450 - €550

Процент на възвръщаемост:

1.95%

*Цените са ориентировачни. За повече информация се свържете с наш консултант.

Powered by Credia

Обадете се 0879900993
ПОДОБНИ ИМОТИ

ПОДОБНИ
ИМОТИ

Сравняване на списъци

Сравни
Ралица Павлова
  • Ралица Павлова

Внимание

Академиите в София, Пловдив и Варна се провеждат 3 пъти в годината – в началото на всяка година, на пролет и на есен.

Очаквайте да се свържем с вас, за да се запишете за следващият свободен прозорец.

This site is registered on wpml.org as a development site. Switch to a production site key to remove this banner.