БИЛДИНГ БОКС продава тристаен апартамент в затворен комплекс в парк с морска панорама.
Предимства на имота:
– Гъвкави схеми на плащане
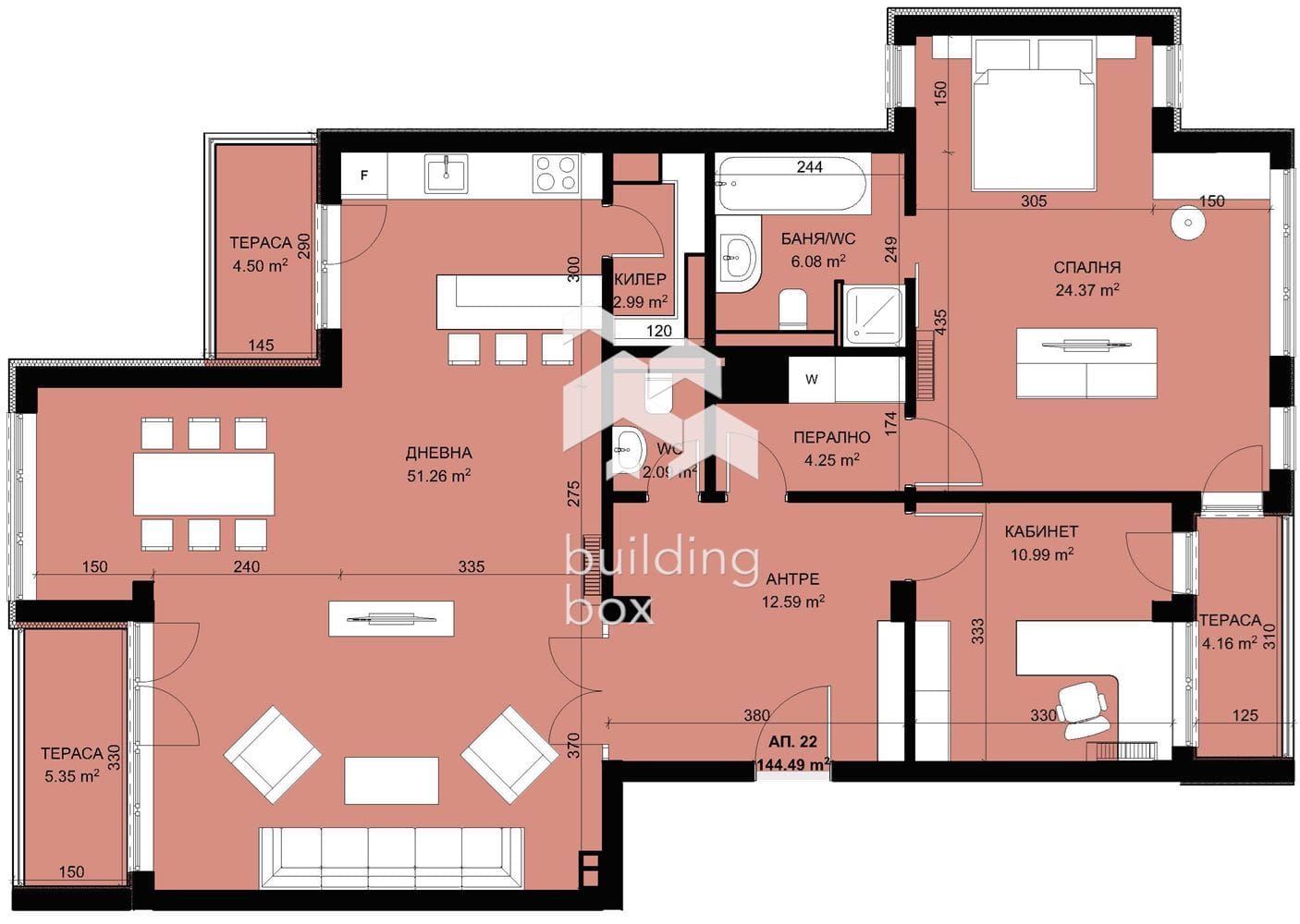
– РАЗПРЕДЕЛЕНИЕ: Апартаментът се състои от - всекидневна с кухненски бокс с площ от 51.26 кв.м. с излаз на две тераси - 5.35 кв.м. и 4.50 кв.м., спалня - 24.37 кв.м. със собствена баня с тоалетна - 6.08 кв.м., спалня - 10.99 кв.м. с излаз на тераса - 4.16 кв.м., перално помещение - 4.25 кв.м., тоалетна - 2.09 кв.м., килер - 2.99 кв.м. Общата площ е 186.09 кв.м., а застроената –144.49 кв.м.
– ЕТАЖ: Етаж 3 от общо 4.
– ИЗЛОЖЕНИЕ: Юг/Изток/Запад.
– ОТОПЛЕНИЕ: Газ, електричество. Газификация на всеки вход по вертикал и хоризонтал до мястото на газовия котел и котлони на кухня. Отръбяване за водно парно за всеки апартамент.
– ЗАВЪРШЕНОСТ: Вароциментови мазилки по стени и тавани, гипсокартон и замазки по подове. Комплексът е с Акт 15. Удостоверение за въвеждане в експлоатация се очаква май 2025 г.
– ОБЩИ ЧАСТИ: Коридорите и стълбищните клетки на всеки вход са с настилки от естествен камък и осветени с дизайнерско ниско-енергийно LED осветление.Външните паркоместа и асфалтова настилка – номерирани и разграфени.
– ЛОКАЦИЯ: м-т Свети Никола
– СИГУРНОСТ: Достъпът до комплекса е ограничен с бариера – с постоянно видеонаблюдение на вътрешните части и периферията на комплекса.
– ПАРКИРАНЕ: Възможност за закупуване на паркомясто или гараж.
Гаражите, вътрешните и подземните паркоместа са изпълнени от шлайфан бетон и/или полимерна настилка, осигуряващи лесна поддръжка при замърсявания от петролни продукти – номерирани и разграфени.
– КОМПЛЕКС: Сградите разполагат с контрол на достъп, видеонаблюдение на вътрешно и външно пространство на всеки вход и видеодомофонна звънчева система.
Кръгови кръстовища и локално, опосредстващи бърза и безопасна връзка с транспортната схема на гр. Варна при дигитален достъп до комплекса чрез разпознаване на регистрационен номер, телефон, чип и/или дистанционно, съобразен с всеки ползвател.
– ПАРК: Ландшафтна архитектура, съчетаваща над 7000 бр. различни по големина и структура дървесна, храстова, тревиста, цъфтяща, вечнозелена и увивна растителност. Дизайнерско алейно, градинско и обектово LED осветление, създаващо комфорт и нощна приказна феерия от светлина в парка.
Собствени сондажи за управление на възобновяеми източници при инженерно оптимизиран разход и постоянен нисък общ разход за поддръжка на парка.
Сградите са оборудвани с периферно видеонаблюдение, съобразено с цялостно решение за дигитален достъп в комплекса.
Изобилието от зеленина хармонира с парковите съоръжения, сред които са:
Простор & Панорама.
Синергия & Симбиоза.
Билдинг Бокс предоставя безплатна консултация и съдействие при финансиране на избрания от Вас имот.
Оферта № 9898
| €
2,500 €
500,000 €
| месеца
36 месеца
360 месеца
| %
2.45%
5%
Месечна вноска
ГПР %
Общо дължима сума
Действия по вписване на ипотека (Еднократно)
€20.45
Такса за проверка и анализ на обезпечението по кредита (Еднократно)
€204.52
Такса план (Месечно)
€6.13
Такса за оценка на обезпечение (Еднократно)
€120.15
Powered by Credia
Подходящ се за предварително одобрение!
Lorem ipsum dolor sit amet, consectetur adipiscing elit. Maecenas imperdiet leo nisl, et porta massa tempus eget. Sed vestibulum sagittis ante eu dictum.
Ценови диапазон за наем на 3-стаен в м-т Св. Никола, Варна
€450 - €550
Процент на възвръщаемост:
1.86%
*Цените са ориентировачни. За повече информация се свържете с наш консултант.
Powered by Credia
Подходящ се за предварително одобрение!
Lorem ipsum dolor sit amet, consectetur adipiscing elit. Maecenas imperdiet leo nisl, et porta massa tempus eget. Sed vestibulum sagittis ante eu dictum.
Сравняване на списъци
СравниМоля, въведете вашето потребителско име или имейл адрес. Ще получите връзка за създаване на нова парола по имейл.
Академиите в София, Пловдив и Варна се провеждат 3 пъти в годината – в началото на всяка година, на пролет и на есен.
Очаквайте да се свържем с вас, за да се запишете за следващият свободен прозорец.