Имоти
Имоти

Тристаен южен апартамент в луксозна сграда-кв.Изгрев

Варна, Изгрев

Общ преглед

  • 3-стаен
  • Тип имот
  • 2
  • Спални
  • 97
  • 2026
  • Година на строеж

Описание

БИЛДИНГ БОКС предлага тристаен апартамент в луксозна жилищна сграда в кв.Изгрев.

 

  • ЛОКАЦИЯ: Близостта до кв. Левски-квартал с отлична инфраструктура, всички ежедневни удобства са на метри разстояние. Имотите в района са с висок потенциал за допълнителни доходи, предвид близостта до два големи университета, няколко училища, детски градини и разстоянието до центъра на града.
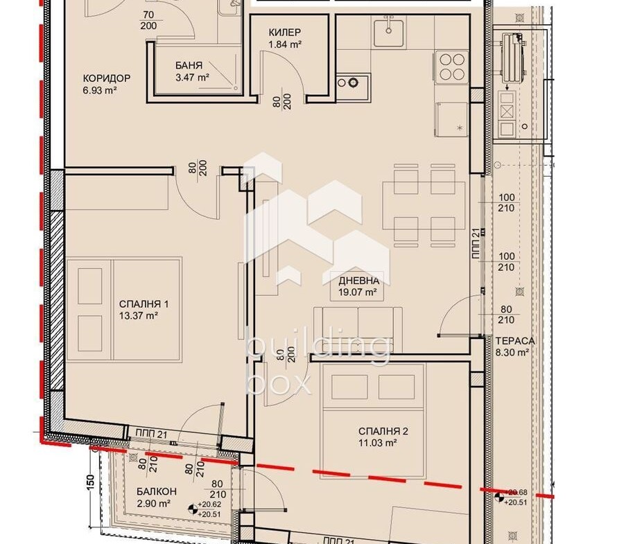
  • РАЗПРЕДЕЛЕНИЕ: Просторна дневна стая с кухненски бокс, две спални, баня с тоалетна, входно антре, тераса с излаз и от двете спални, втора тераса към дневната и килер.
  • ЕТАЖ: Етаж 8 от общо 8
  • ИЗЛОЖЕНИЕ: Юг/Изток
  • ОТОПЛЕНИЕ: Електричество
  • ЗАВЪРШЕНОСТ: Сградата е с получен Акт образец 14, Акт 15 се очаква до края на 2025г.
  • ПАРКИРАНЕ: Районът НЕ е синя зона. На сутеренно ниво в сградата се предлагат двойни паркоместа.
  • СТРОИТЕЛСТВО: Ново модерно тухлено строителство, при което са използвани висок клас материали. С раздвижена фасада и луксозни общи части. Към обявата са приложени снимки от жилища в идентична на тази сграда, с цел придобиване на максимална представа относно начина и качеството на изпълнение.
  • ИНВЕСТИТОР: Инвеститор с портфолио от обекти с РЗП общо близо 10 000 кв.м, които могат да бъдат показани по всяко време. Компанията е специализирана в инвестиции, строителство, предлага индивидуален проект, изпълнение на довършителните работи, както и обзавеждане на жилището. Предлагат се гъвкави схеми на разплащане, с индивидуален подход към нуждите на всеки клиент.


Билдинг Бокс предоставя безплатна консултация и съдействие при финансиране на избрания от Вас имот.

Оферта 8556

Имаш интерес?

Свържи се
с нас

Имаш интерес?

Свържи се
с нас

Допълнителни детайли

  • Номер на имота: 8556
  • Цена: € 190,300
    (372,194.45 лв.)
  • Спални: 2
  • Площ: 97
  • Статус на имота: Купи

Размер на кредит

| €

2,500 €

500,000 €

Срок на кредит

| месеца

36 месеца

360 месеца

Лихвен процент

| %

2.45%

5%

Месечна вноска

ГПР %

Общо дължима сума

Действия по вписване на ипотека (Еднократно)

€20.45

Такса за проверка и анализ на обезпечението по кредита (Еднократно)

€204.52

Такса план (Месечно)

€6.13

Такса за оценка на обезпечение (Еднократно)

€120.15

Powered by Credia

Стойност на имота

€190300 / 372195 лв.

Няма данни за наемите в района.

Powered by Credia

Обадете се 0879900993
ПОДОБНИ ИМОТИ

ПОДОБНИ
ИМОТИ

Сравняване на списъци

Сравни
Вивиан Дончева
  • Вивиан Дончева

Внимание

Академиите в София, Пловдив и Варна се провеждат 3 пъти в годината – в началото на всяка година, на пролет и на есен.

Очаквайте да се свържем с вас, за да се запишете за следващият свободен прозорец.

This site is registered on wpml.org as a development site. Switch to a production site key to remove this banner.